Project SACOCO NO.38

S K Y L I N E

Project

SKYLINE

SACOCO NO.38

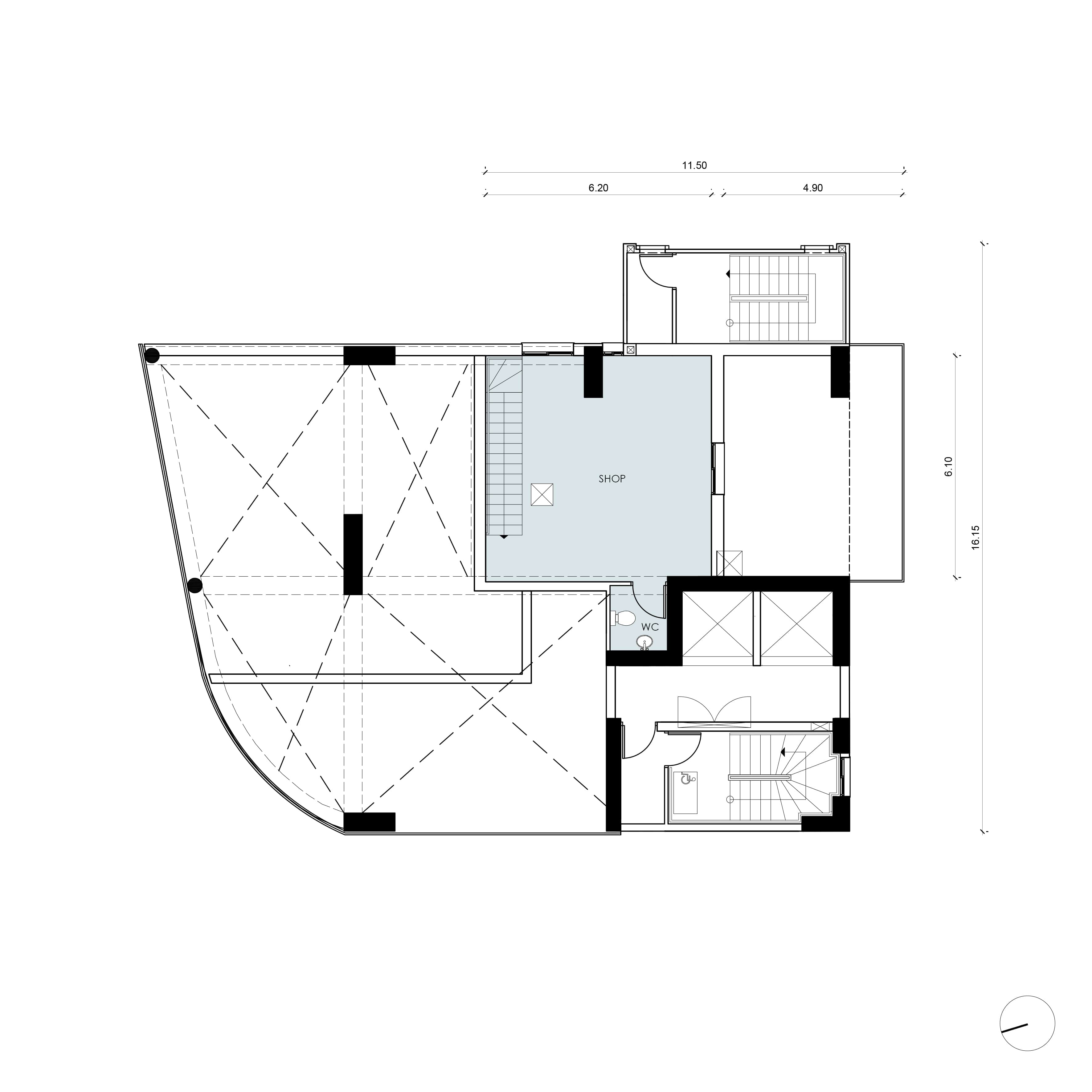
Skyline is an elegant 13-story residential building situated in the heart of Nicosia, designed to offer an elevated urban lifestyle. The building features two underground parking levels, ensuring abundant space and security for its residents. On the ground floor, a variety of amenities, including shops, a welcoming reception area, and a modern gym, contribute to the overall comfort and convenience of the residents.

The floors between the 1st and 11th offer sophisticated apartments with two spacious bedrooms, a master bedroom with an ensuite bathroom and walk-in closet, a modern kitchen, living room, dining area, and guest bathroom. Each apartment spans 147 m² of covered living space and includes a 36.75 m² covered veranda.

The luxurious duplex apartment on the 12th and 13th floors includes a private pool and provides two stories of refined living — with the lower level featuring a living room, kitchen, dining area, and guest bathroom, and the upper level offering two bedrooms and a master suite with ensuite bathroom and walk-in closet. With its prime location and superior amenities, Skyline offers a unique blend of luxury and convenience in the heart of Nicosia.

40 Elia Papakyriakou, 2415 Egkomi, Nicosia
13 Floors – 11 Apartments + 1 Duplex + 1 Shop
3 Bedrooms per Apartment
2 Underground Parking Levels
Gym, Shops & Reception Area
Apartments
FLOOR / UNIT
TYPE
ROOMS
INDOOR AREAS (m²)
COVERED VERANDAS (m²)
UNCOVERED VERANDAS (m²)
COMMON AREAS (m²)
PARKING
STORAGE (m²)
TOTAL (m²)
AVAILABILITY
Ground Floor Shop - 91.00 18.00 0.00 - 1 4.00 113.00 Available
1st – 11th Apartment 3 147.00 36.75 0.00 - 1 4.00 187.75 Available
12th – 13th Duplex Apartment 3 184.00 86.00 0.00 - 1 4.00 274.00 Available

 

Technical Specifications

GENERAL DESCRIPTION

  1. FRAME: Constructed of reinforced concrete, based on anti-earthquake regulations. (Changes are not acceptable except by the civil engineer of the project).
  2. MASONRY: External walls of thermal insulated bricks (25 cm) and internal walls of perforated brick (10 cm).
  3. PLASTERING: Three coats of plaster inside and outside. (Thermal façade made of 8 cm thick polystyrene).
  4. PAINTWORK: Interior paint – white emulsion. Exterior – Santex for external use (architect’s choice).
  5. FLOORS:
    • Living Room / Dining Room / Kitchen: Ceramic tiles (€30/m²)
    • Bedrooms: Parquet flooring (€30/m²)
    • Verandas: Ceramic tiles (€30/m²)
    • Bathrooms / W.C.: Ceramic tiles (€30/m²) up to ceiling height
    • Kitchen Wall: Granite splashback between counters
  6. SANITARY WARE: Provision: €1,200 (1BR), €3,000 (2BR), €5,000 (4BR). Includes WC, WB, bath mixer, shower mixer, basin mixer, trough, and accessories. All WCs are wall-mounted.
  7. CARPENTRY WORK (WOOD):
    • Entrance doors: Fire Service–approved Gabstore, €1,300 provision
    • Interior doors: €380 each
    • Kitchens: Optional – €2,000 (1BR), €5,000 (2BR), €10,000 (4BR)
    • Countertops: Granite, €700 (1BR), €1,500 (2BR), €2,500 (4BR)
    • Cupboards: €230/m² (as per plan)
  8. ALUMINUM: Anthracite color, double thermal insulating glass, MU3000 series (no changes accepted).
  9. CENTRAL HEATING: Underfloor heating with heat pump (ARISTON type).
  10. HYDRAULIC INSTALLATION: “Pipe in pipe” system for hot and cold water.
  11. SOLAR WATER HEATER: 180 L capacity per apartment (VALENTINES brand).
  12. A/C: Provision for intubation only.
  13. VIDEO ENTRY SYSTEM: Color system for all apartments.
  14. PRESSURE SYSTEM: Independent system per apartment (€250 provision).
  15. BALCONIES: Glass railings on all verandas.
  16. ELECTRIC SHUTTERS: Installed in all bedrooms (architect’s choice; no changes accepted).
  17. ELECTRICAL INSTALLATION:
    • Living Room: 6 sockets, 1 TV point, 1 telephone point, 2 lighting points
    • Kitchen: 4 sockets, 6 appliance outlets, 2 lighting points
    • Bedrooms: 4 sockets, 1 TV point, 1 lighting point, 1 telephone point
    • Corridor: 1 socket, 1 lighting point
  18. Roof insulation: 8 cm polystyrene + 4 mm corrugated paper waterproofing.
  19. Central antenna system included.
  20. Fireplace installation: 4th-floor apartment (€3,000 value).
  21. Wireless alarm system: Installed in 4th-floor apartment.
  22. Photovoltaic system: 2 KVA in 2BR & 4BR apartments.
  23. Handles (cabinetry, kitchen, doors): €250 (1BR), €350 (2BR), €500 (4BR).

NOTES

  • Prices include VAT approval.
  • VAT will be charged on additional works.
  • All materials supplied by company partners.
  • No changes permitted to the external appearance.
  • If buyers choose their own suppliers, provision amount reduced by 20%.