HERCULES RESIDENCE
| Apartment | Floor / Unit | Rooms | Indoor Areas(m2) | Covered Verandas(m2) | Uncovered Verandas(m2) | Common Areas(m2) | Parking(m2) | Storage(m2) | Total (m2) | Availability |
|---|---|---|---|---|---|---|---|---|---|---|
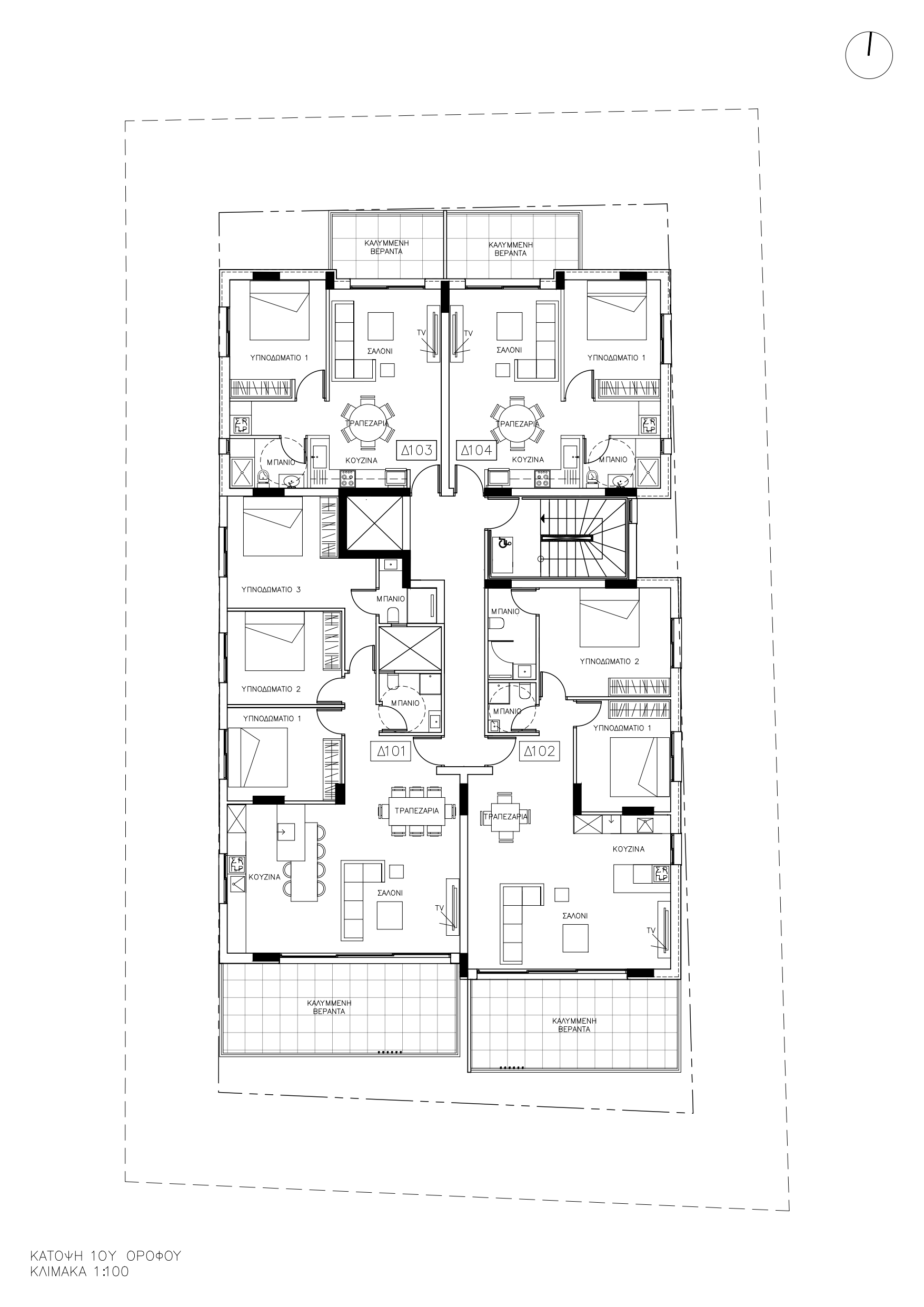
| 101 | 1st Floor | 3 | 105.00 | 23 | 0.00 | 10.31 | 15.00 | 2.50 | 155.81 | Available |
| 102 | 1st Floor | 2 | 85.00 | 20.00 | 0.00 | 8.35 | 15.00 | 2.50 | 130.85 | Sold |
| 103 | 1st Floor | 1 | 50.00 | 8.00 | 0.00 | 4.91 | 15.00 | 1.50 | 79.41 | Sold |
| 104 | 1st Floor | 1 | 50.00 | 8.00 | 0.00 | 4.91 | 15.00 | 1.50 | 79.41 | Sold |
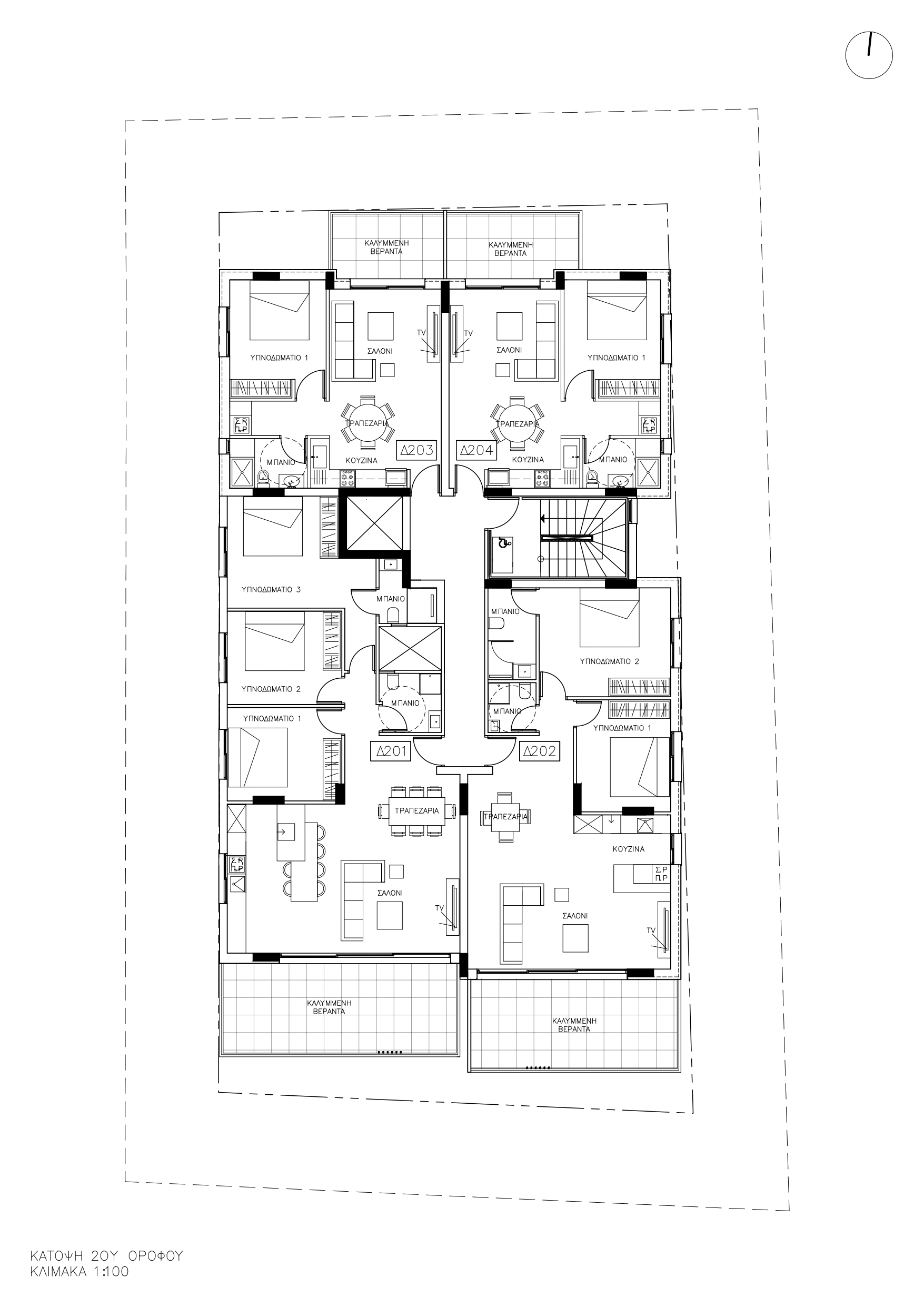
| 201 | 2nd Floor | 3 | 105.00 | 23.00 | 0.00 | 10.31 | 15.00 | 1.50 | 154.81 | Sold |
| 202 | 2nd Floor | 2 | 85.00 | 20.00 | 0.00 | 8.35 | 15.00 | 2.50 | 130.85 | Sold |
| 203 | 2nd Floor | 1 | 50.00 | 8.00 | 0.00 | 4.91 | 15.00 | 2.50 | 80.41 | Sold |
| 204 | 2nd Floor | 1 | 50.00 | 8.00 | 0.00 | 4.91 | 15.00 | 2.50 | 80.41 | Sold |
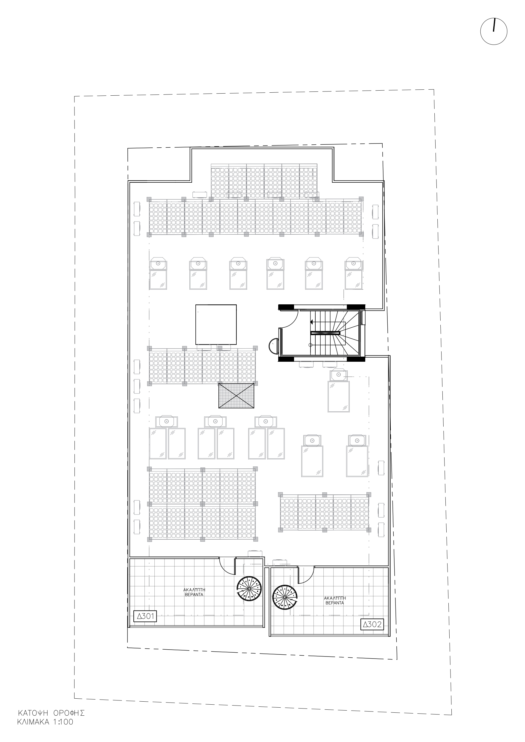
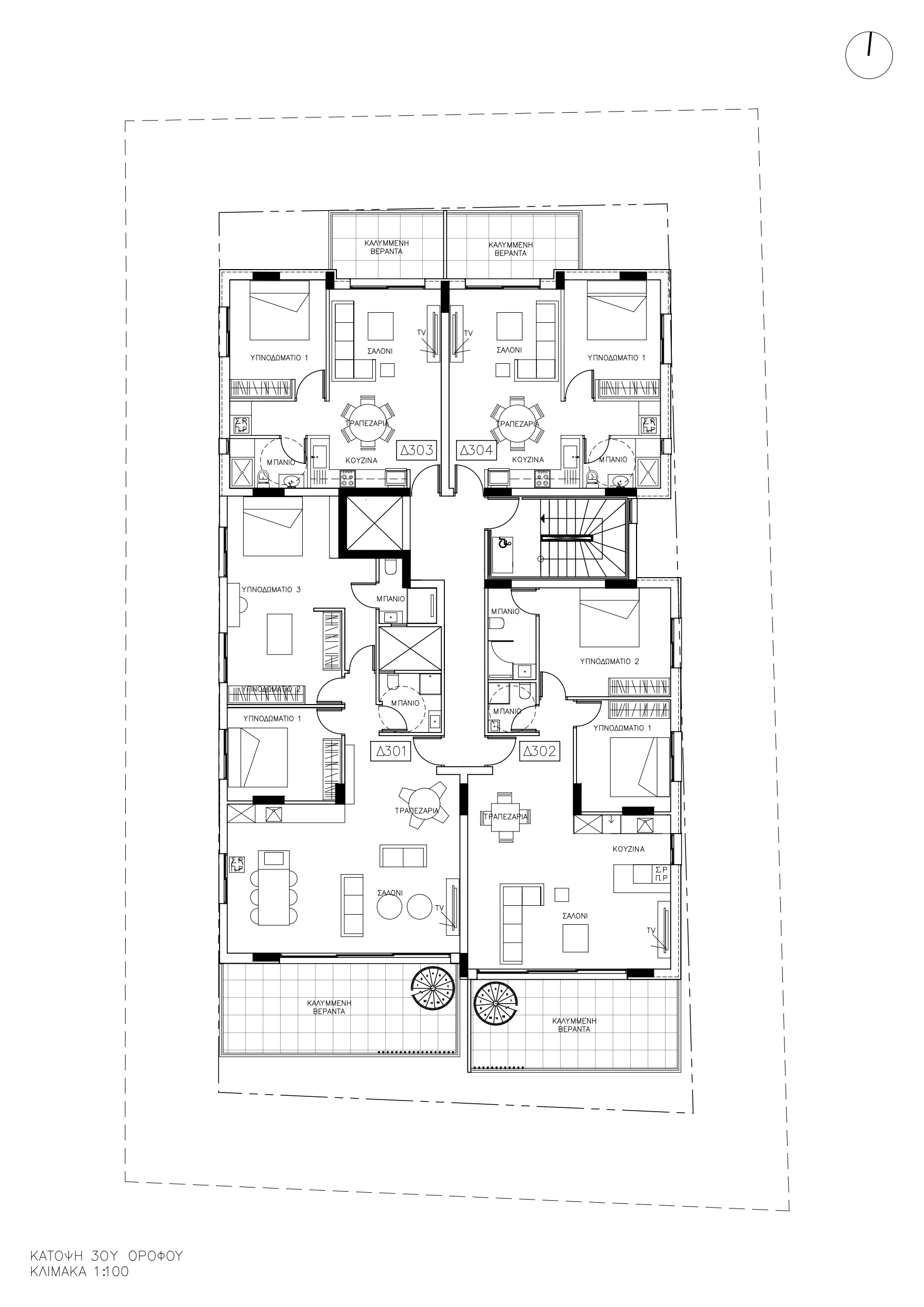
| 301 | 3rd Floor | 3 | 105.00 | 23.00 | 30.12 | 10.31 | 15.00 | 2.50 | 185.93 | Sold |
| 302 | 3rd Floor | 2 | 85.00 | 20.00 | 27.37 | 8.35 | 15.00 | 2.50 | 158.22 | Sold |
| 303 | 3rd Floor | 1 | 50.00 | 8.00 | 0.00 | 4.91 | 15.00 | 2.50 | 80.41 | Sold |
| 304 | 3rd Floor | 1 | 50.00 | 8.00 | 0.00 | 4.91 | 15.00 | 3.50 | 80.91 | Sold |
Technical Specifications
GENERAL DESCRIPTION
TECHNICAL SPECIFICATIONS OF APARTMENTS
FRAME: It will be made of reinforced concrete. The whole construction is done based on the anti-seismic regulations. (Changes are not acceptable except with the approval of the Civil Engineer of the Project).
MASONRY: The external walls will be of 25 cm bricks and the internal walls will be of 10 cm perforated bricks.
PLASTERING: There will be three coats of plaster inside and outside. Thermal façade with 5 cm polystyrene.
PAINT: Interior white emulsion paint. Exterior Santex paint for external use (choice of the architect).
FLOORS
- Living Room / Dining Room / Kitchen: Ceramic (€30/sq.m.) or Laminate (€40/sq.m. purchase and installation)
- Bedrooms: Ceramic (€30/sq.m.) or Laminate (€40/sq.m. purchase and installation)
- Verandas: Ceramic (€30/sq.m.)
- Roof Garden: Ceramic (€30/sq.m.)
- Bathrooms / W.C.: Ceramic (€30/sq.m.) up to a height of 2.40 m
- Kitchen Wall Tiles: Ceramic tiles placed between the counters, height 0.60 m (€30/sq.m.)
SANITARY WARE: Provision amount €1,200 for one-bedroom apartments and €3,000 for two-bedroom and three-bedroom apartments. (Includes WC, WB, shower mixer, wash basin mixer, trough, trough mixer, bathroom accessories and shower door). Wash basins will be fitted with granite (€150 each).
WOODWORK
- Entrance Door: Security door in color of your choice, approved by the Fire Service (€1,300 provision)
- Interior Doors: Plywood covered in the color of your choice (€350 each)
- Kitchens: €2,000 (1-bedroom), €5,000 (2- & 3-bedroom apartments)
- Countertops: Techno-granite – €800 (1-bedroom), €1,500 (2- & 3-bedroom apartments)
- Cupboards: According to the plans. Frame made of melamine in the color of your choice and veneered opening doors (€230/sq.m.)
- Handles: €400 provision for cabinets and kitchen counters
ALUMINUM: Silver color with low-e double glass, MU3000 THERMA series (changes are not acceptable).
PLUMBING INSTALLATION: “Pipe in pipe” system for hot and cold water.
SOLAR HEATER: 150 liters for one-bedroom apartments and 180 liters for two- and three-bedroom apartments (brand VALENTINES).
A/C: Provision for ducted system only.
INTERCOM: Color intercom system for all apartments.
PRESSURE SYSTEM: Independent system for each apartment (€250 purchase and installation).
BALCONIES: Glass railings installed on all balconies.
ELECTRIC SHUTTERS: Installed on all bedroom windows (architect’s choice – changes are not acceptable).
ELECTRICAL
- Living Room: 6 sockets, 1 TV point, 1 internet point, 2 lighting points
- Kitchen: 4 sockets, 6 appliance heaters, 2 lighting points
- Bedrooms: 4 sockets, 1 TV point, 1 lighting point, 1 internet point
- Corridor: 1 socket point, 1 lighting point
ROOF INSULATION: 5 cm polystyrene for thermal insulation and 4 mm corrugated waterproof membrane.
NOTES
- The above prices include VAT 19%.
- VAT will be charged on additional works.
- All materials will be supplied by company partners.
- No changes are permitted to the external appearance.
- The buyer has the right to transfer provision amounts from one term to another.






