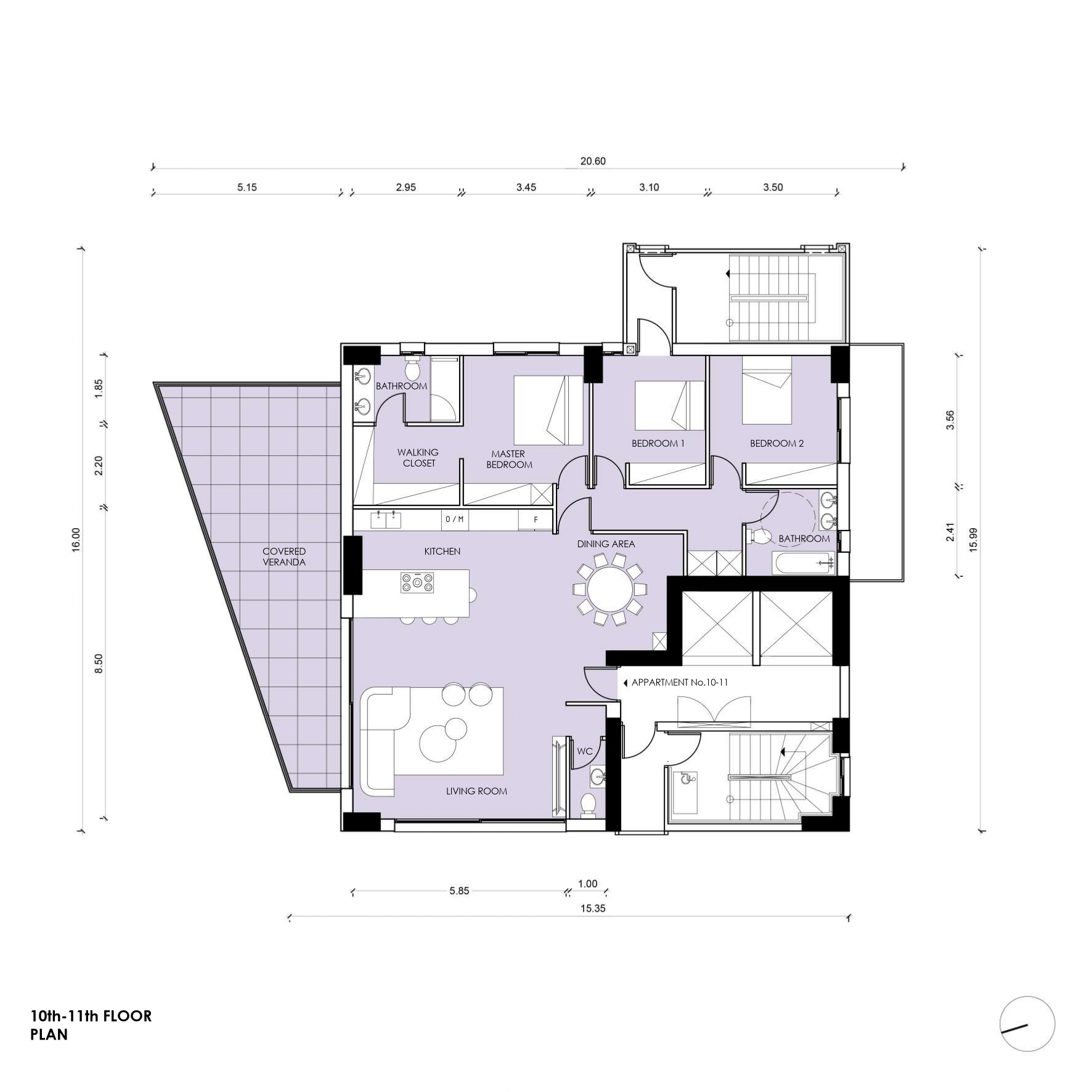
Skyline is an elegant 13-story residential building located in the heart of Nicosia, designed to offer an elevated urban lifestyle. The building features two underground parking levels, ensuring ample space and security for its residents. On the ground floor, various amenities such as retail shops, a welcoming reception area, and a modern gym contribute to the overall comfort and convenience of the residents. Floors 1 through 11 offer refined apartments with a layout that includes two spacious bedrooms, a master bedroom with an ensuite bathroom and a walk-in closet, a modern kitchen, a living room, a dining area, and a guest WC. Each apartment covers 147 square meters of internal covered area, along with an additional 36.75 square meters of covered veranda.
The luxurious duplex apartment located on the 12th and 13th floors features two levels of refined living. The 12th floor includes a living room, kitchen, dining area, and a guest WC, while the 13th floor consists of two bedrooms and a master bedroom with an ensuite bathroom and walk-in closet, as well as an additional bathroom serving the remaining bedrooms. This exceptional apartment also includes a private swimming pool, offering a truly outstanding living experience. With its central location and premium amenities, Skyline delivers a unique combination of luxury and convenience in the heart of Nicosia.
S K Y L I N E
| Apartment | Floor / Unit | Rooms | Indoor Areas(m2) | Covered Verandas(m2) | Uncovered Verandas(m2) | Common Areas(m2) | Parking(m2) | Storage(m2) | Total (m2) | Availability |
|---|---|---|---|---|---|---|---|---|---|---|
| - | Ground Floor | - | 140.00 | - | - | - | - | - | 140.00 | Sold |
| 0 | Ground Floor | - | 140.00 | 0.00 | 0.00 | - | - | 0 | 140.00 | Sold |
| 1 | 1st Floor | 3 | 147.00 | 37.00 | 0.00 | 25.00 | 15.00 | 3.00 | 227.00 | Sold |
| 2 | 2nd Floor | 3 | 147.00 | 37.00 | 0.00 | 25.00 | 15.00 | 3.00 | 227.00 | Sold |
| 3 | 3rd Floor | 3 | 147.00 | 37.00 | 0.00 | 25.00 | 15.00 | 3.00 | 227.00 | Available |
| 4 | 4th Floor | 3 | 147.00 | 37.00 | 0.00 | 25.00 | 15.00 | 3.00 | 227.00 | Sold |
| 5 | 5th Floor | 3 | 147.00 | 37.00 | 0.00 | 25.00 | 15.00 | 3.00 | 227.00 | Available |
| 6 | 6th Floor | 3 | 147.00 | 37.00 | 0.00 | 25.00 | 15.00 | 3.00 | 227.00 | Sold |
| 7 | 7th Floor | 3 | 147.00 | 37.00 | 0.00 | 25.00 | 15.00 | 3.00 | 227.00 | Sold |
| 8 | 8th Floor | 3 | 147.00 | 37.00 | 0.00 | 25.00 | 15.00 | 3.00 | 227.00 | Available |
| 9 | 9th Floor | 3 | 147.00 | 37.00 | 0.00 | 25.00 | 15.00 | 3.00 | 227.00 | Available |
| 10 | 10th Floor | 3 | 147.00 | 37.00 | 0.00 | 25.00 | 15.00 | 3.00 | 227.00 | Available |
| 11 | 11th Floor | 3 | 147.00 | 37.00 | 0.00 | 25.00 | 15.00 | 3.00 | 227.00 | Available |
| 12 | 12th & 13th Floor | 3 | 184 | 75.00 | 0.00 | 25.00 | 15.00 | 3.00 | 302 | Available |
Technical Specifications
GENERAL DESCRIPTION
TECHNICAL SPECIFICATIONS OF APARTMENTS
STRUCTURAL FRAME: Constructed of reinforced concrete in accordance with anti-seismic regulations. (No changes are accepted except with the approval/signature of the Project’s Civil Engineer).
MASONRY: External walls constructed with thermal insulating bricks (25 cm) and internal walls with perforated bricks (10 cm).
PLASTERING: Three coats of plaster applied internally and externally. (Thermal façade with 8 cm thick polystyrene insulation).
PAINTWORK: Interior: white emulsion paint. Exterior: Santex exterior-grade paint (architect’s selection).
FLOORS
- Living Room / Dining Room / Kitchen: Marble or solid parquet flooring
- Bedrooms: Solid parquet flooring
- Terraces: Ceramic tiles or first-quality granite
- Bathrooms: Ceramic tiles or first-quality granite
SANITARY FITTINGS: First-quality materials sourced from reputable foreign manufacturers.
CARPENTRY (WOODWORK)
- Kitchen: Italian kitchen supplied by Cuccina & Cuccina
- Wardrobes: Italian wardrobes supplied by Cuccina & Cuccina
- Bathroom Furniture: Supplied by Cuccina & Cuccina
- Internal Doors: Of Italian origin
- Countertops: First-quality technogranite
ENTRY DOOR: Security door of Italian manufacture.
CENTRAL HEATING & AIR CONDITIONING: Underfloor heating will be installed, along with wall-mounted air conditioning units utilizing the VRV system.
ELECTRIC SHUTTERS: Installed on all bedroom windows.
ALARM SYSTEM: Installed.
ELECTRICAL INSTALLATION CONTROL SYSTEM: Automation system for electrical installation management.
FIRE PROTECTION SYSTEM: Installed in accordance with safety regulations.
FALSE CEILING: Decorative false ceiling with integrated lighting throughout the apartment.
NOTES
- All materials will be sourced from the company’s approved suppliers.
- No alterations will be accepted regarding the external appearance of the building.







